Zhucheng Longxin Environmental Protection Technology Co., Ltd
全国销售热线 15966164777
扫一扫添加微信

三网带式浓缩脱水一体机,我公司生产的压滤机机型为基础,通过消化、吸收奥地利和德国等多家公司产品的特、优点,改进、
设计制造的新型三网带式浓缩脱水一体机,该机博多家之长,对同类设备许多部件、设计不足之处进行了革新,增加了浓缩脱水区,
使该系列设备的脱水指标和运转性能达到理想状态,同时更加整齐、美观。对进料介质浓度波动具有较强的适应能力, 处理能力大、
连续运行处理效果好、挤出泥饼的固含量高。可全天候连续自动化运行。
用途
三网带式浓缩脱水一体机适用于城市污水处理厂、制药、电镀、造纸、皮革、印染、冶金、化工、屠宰、食品、酒制造业及环
保工程中废水处理工序的污泥脱水,在工业生产中也可用于固液分离之场合,是环境治理和资源回收的理想设备。
结构与性能
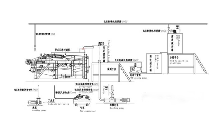
三网带式浓缩脱水一体机采用带式浓缩机和带式压滤机组合在一起,应用于各种不同污泥性质的连续浓缩、脱水,从而得到高
含固率的泥饼。在浓缩段将污泥从2.5%左右的污泥浓缩到适合压滤的5%以上,然后在压滤段脱水到含固30%以上。
三网带式浓缩脱水一体机包括机架、重力脱水段、压榨段、泥耙、驱动装置、滤带清洗装置、滤带涨紧装置、滤带跟踪及纠偏
系统、滤液收集盘及排水管、内部电线及管道等,全部使用耐磨耐腐蚀材料,确保设备长时间稳定运行。
三网带式浓缩脱水一体机有完善的自动控制和保护功能,一旦出现污泥量不足,聚合物缺少,滤带跑偏,冲洗水压过低,压缩
空气压力过低,外部信号指令等均停机和报警。
山东临沂带式压滤机安装调试现场
江苏盐城带式压滤机安装调试现场
Zhucheng Longxin Environmental Protection Machinery Technology Co., Ltd

Copyright ©中国·yL23411永利All rights reserved